会議室のご案内
ホテルクライトン新大阪の4つの特徴
大小6つの会議室
最大150名収容の会議室をはじめ、30名収容の小会議室まで。
アクセス最高。
新大阪からひと駅
「西中島南方」駅
徒歩3分!
ホテルクライトン新大阪は西中島南方(新大阪から1駅)より徒歩5分に位置し、宿泊研修、社内会議・労働組合会議など様々な用途でご利用頂いております。便利な新大阪エリアに位置し、梅田、なんばなどの大阪主要駅へのアクセスはもちろん、伊丹空港40分、京都や神戸にも移動しやすい場所にあります。会議・研修・セミナーなどのご計画の際はホテルクライトン新大阪のご利用をご検討下さい。
ホテル会議室は会場のバリエーション(60㎡~257㎡)最大150名を収容できる広さで皆様のニーズにお応え致します。
ホテルクライトン新大阪会議室の強みは、ハイレベルなホスピタリティーとリーズナブルな料金、そしてお客様のご要望に沿ったお食事です。
専門スタッフによるプロフェッショナルな運営サポートでお客様のご要望にお応え致します。

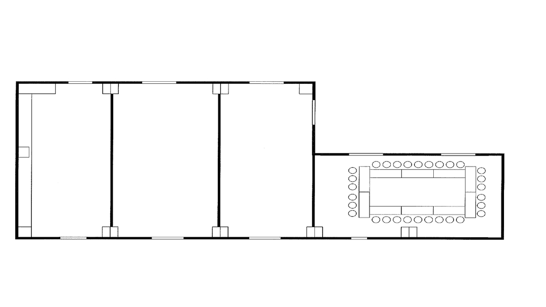
- 平安 -
ホテルクライトン新大阪の会議室、最大150名収容
ホテルクライトン新大阪の会議室、最大150名収容。
【会場の無料備品】
演台、司会台、マイク、ホワイトボード、ハンガーラック、(全室Wi-Fi対応)
| 面積 | 室数 |
|---|---|
| 257平方メートル | 1室 |
| 最大収容人数 | ||
|---|---|---|
| スクール | ロの字 | 島 |
| 150人 | 54人 | 54人 |
オプション
- スクリーン………3,300円
- プロジェクター………5,500円
- 吊看板………22,000円(5400×450)
- 式次第・立看板………各11,000円(1800×900)
- 机垂れ紙………330円
- 盛り花………一壺5,500円~
料金表
平日・土日・祝
| 9時~12時 | 12時~17時 | 全日(9時~21時) | 延長(1時間) |
|---|---|---|---|
| 92,400円 | 154,000円 | 369,600円 | 30,800円 |
注意事項
1 ・深夜のご利用をご希望される場合はご相談ください。2 ・上記料金全て税込金額となっております。
3 ・日帰り研修・会議室は全日料金を申し受けます。
4 ・お水・お茶のご利用サービス(セルフ)
5 ・平安をご利用のお客様は2階会議室貸し切り
設備
- ・有線マイク3本、無線マイク2本、の合計5本(最大)ご利用可能。
- ・スクリーン(移動式)を2か所設置可能(同時放映)
- ・テーブルクロス
平面図

スクール 150名 3名掛け
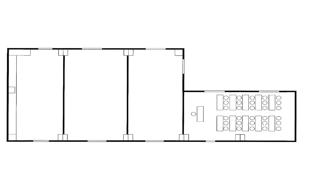
- 天平+弥生+飛鳥 -
最大120名の人数での会議が可能な大会議室
最大120名の人数での会議が可能な大会議室。
明るくゆったりとしたスペースは、企業研修はもちろん、入社式・試験・講演会など使い勝手のよい研修室です。
教材説明・プレゼンテーションでの利用におすすめです。
【会場の無料備品】
演台、司会台、マイク、ホワイトボード、ハンガーラック、(全室Wi-Fi対応)
| 面積 | 室数 |
|---|---|
| 195平方メートル | 1室 |
| 最大収容人数 | ||
|---|---|---|
| スクール | ロの字 | 島 |
| 120人 | 54人 | 54人 |
オプション
- スクリーン………3,300円
- プロジェクター………5,500円
- 吊看板………22,000円(5400×450)
- 式次第・立看板………各11,000円(1800×900)
- 机垂れ紙………330円
- 盛り花………一壺5,500円~
料金表
平日・土日・祝
| 9時~12時 | 12時~17時 | 全日(9時~21時) | 延長(1時間) |
|---|---|---|---|
| 69,300円 | 115,500円 | 277,200円 | 23,100円 |
注意事項
- ・深夜のご利用をご希望される場合はご相談ください。
- ・上記料金全て税込金額となっております。
- ・日帰り研修・会議室は全日料金を申し受けます。
- ・お水・お茶のご利用サービス(セルフ)
設備
- ・有線マイク3本、無線マイク2本、の合計5本(最大)ご利用可能。
- ・スクリーン(移動式)を2か所設置可能(同時放映)
- ・テーブルクロス
平面図
- 天平+弥生 -
スクール形式で最大72名でのご利用が可能な会議室
スクール形式で最大72名でのご利用が可能な会議室です。
2分割してのご利用も可能です。
【会場の無料備品】
演台、司会台、マイク、ホワイトボード、ハンガーラック、(全室Wi-Fi対応)
| 面積 | 室数 |
|---|---|
| 129平方メートル | 1室 |
| 最大収容人数 | ||
|---|---|---|
| スクール | ロの字 | コの字 |
| 72人 | 42人 | 33人 |
オプション
- スクリーン………3,300円
- プロジェクター………5,500円
- 吊看板………22,000円(5400×450)
- 式次第・立看板………各11,000円(1800×900)
- 机垂れ紙………330円
- 盛り花………一壺5,500円~
料金表
平日・土日・祝
| 9時~12時 | 12時~17時 | 全日(9時~21時) | 延長(1時間) |
|---|---|---|---|
| 46,200円 | 77,000円 | 184,800円 | 15,400円 |
注意事項
- ・深夜のご利用をご希望される場合はご相談ください。
- ・上記料金全て税込金額となっております。
- ・日帰り研修・会議室は全日料金を申し受けます。
- ・お水・お茶のご利用サービス(セルフ)
設備
- ・有線マイク3本、無線マイク2本、の合計5本(最大)ご利用可能。
- ・スクリーン(移動式)を2か所設置可能(同時放映)
- ・テーブルクロス
平面図
- 弥生 -
スクール形式で最大30名ご利用可能な会議室
スクール形式で最大30名ご利用可能な会議室です。
【会場の無料備品】
演台、司会台、マイク、ホワイトボード、ハンガーラック、(全室Wi-Fi対応)
| 面積 | 室数 |
|---|---|
| 69平方メートル | 1室 |
| 最大収容人数 | ||
|---|---|---|
| スクール | ロの字 | コの字 |
| 30人 | 30人 | 24人 |
オプション
- スクリーン………3,300円
- プロジェクター………5,500円
- 吊看板………22,000円(5400×450)
- 式次第・立看板………各11,000円(1800×900)
- 机垂れ紙………330円
- 盛り花………一壺5,500円~
料金表
平日・土日・祝
| 9時~12時 | 12時~17時 | 全日(9時~21時) | 延長(1時間) |
|---|---|---|---|
| 23,100円 | 38,500円 | 92,400円 | 7,700円 |
注意事項
- ・深夜のご利用をご希望される場合はご相談ください。
- ・上記料金全て税込金額となっております。
- ・日帰り研修・会議室は全日料金を申し受けます。
- ・お水・お茶のご利用サービス(セルフ)
- ・平安をご利用のお客様は2階会議室貸し切り
設備
- ・有線マイク3本、無線マイク2本、の合計5本(最大)ご利用可能。
- ・スクリーン(移動式)を2か所設置可能(同時放映)
- ・テーブルクロス(白)
平面図
- 飛鳥 -
スクール形式で最大30名ご利用可能な会議室
スクール形式で最大30名ご利用可能な会議室です。
【会場の無料備品】
演台、司会台、マイク、ホワイトボード、ハンガーラック、(全室Wi-Fi対応)
| 面積 | 室数 |
|---|---|
| 66平方メートル | 1室 |
| 最大収容人数 | ||
|---|---|---|
| スクール | ロの字 | コの字 |
| 30人 | 30人 | 24人 |
オプション
- スクリーン………3,300円
- プロジェクター………5,500円
- 吊看板………22,000円(5400×450)
- 式次第・立看板………各11,000円(1800×900)
- 机垂れ紙………330円
- 盛り花………一壺5,500円~
料金表
平日・土日・祝
| 9時~12時 | 12時~17時 | 全日(9時~21時) | 延長(1時間) |
|---|---|---|---|
| 23,100円 | 38,500円 | 92,400円 | 7,700円 |
注意事項
- ・深夜のご利用をご希望される場合はご相談ください。
- ・上記料金全て税込金額となっております。
- ・日帰り研修・会議室は全日料金を申し受けます。
- ・お水・お茶のご利用サービス(セルフ)
設備
- ・有線マイク3本、無線マイク2本、の合計5本(最大)ご利用可能。
- ・スクリーン(移動式)を2か所設置可能(同時放映)
- ・テーブルクロス
平面図
- 万葉 -
スクール形式で最大30名ご利用可能な会議室
スクール形式で最大30名ご利用可能な会議室です。
【会場の無料備品】
演台、司会台、マイク、ホワイトボード、ハンガーラック、(全室Wi-Fi対応)
| 面積 | 室数 |
|---|---|
| 62平方メートル | 1室 |
| 最大収容人数 | ||
|---|---|---|
| スクール | ロの字 | コの字 |
| 30人 | 30人 | 24人 |
オプション
- スクリーン………3,300円
- プロジェクター………5,500円
- 吊看板………22,000円(5400×450)
- 式次第・立看板………各11,000円(1800×900)
- 机垂れ紙………330円
- 盛り花………一壺5,500円~
料金表
平日・土日・祝
| 9時~12時 | 12時~17時 | 全日(9時~21時) | 延長(1時間) |
|---|---|---|---|
| 23,100円 | 38,500円 | 92,400円 | 7,700円 |
注意事項
- ・深夜のご利用をご希望される場合はご相談ください。
- ・上記料金全て税込金額となっております。
- ・日帰り研修・会議室は全日料金を申し受けます。
- ・お水・お茶のご利用サービス(セルフ)
設備
- ・有線マイク3本、無線マイク2本、の合計5本(最大)ご利用可能。
- ・スクリーン(移動式)を2か所設置可能(同時放映)
- ・テーブルクロス
平面図



